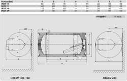
Электрический бойлер Drazice OKCEV 160 на 160 литров воды, предназначен для монтажа в горизонтальном положении и оптимален для использования в помещениях с ограниченным внутренним пространством. Водонагреватель может быть смонтирован на стене с помощью кронштейнов, которые входят в комплект поставки, или закреплён горизонтально на любой подходящей конструкции. Над и под водонагревателем всегда надо оставлять достаточно места для монтажа труб подачи воды. Нагрев воды происходит с помощью керамического нагревательного элемента (сухой ТЭН), управление которым обеспечивается рабочим термостатом, а безопасность – предохранительным термостатом (термопредохранителем). Диапазон допустимых температур – от 5 до 74 °С. Номинальное напряжение – 1-PE–N/AC 230 V/50 Hz. Электроизоляционное покрытие IP 42.


Нет отзывов